GreenLux Series / Model 12

Built by S2A Modular

Modular
No 3d Tour Available

About This Home

The GreenLux Series Model 12 by S2A Modular has 4 bedrooms and 3.50 bathrooms. At 4187 square feetit is a skillfully designed and beautifully crafted home for you and your family.

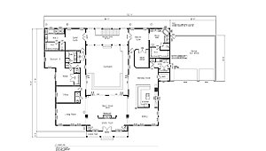
Model 12 – Palatial contemporary style home main level features large courtyard, center tower, retreat areas, great room, foyer, state of the art kitchen, dining room, morning room, large luxurious master bedroom suite, guest bedroom suite with second master bath, office and center tower.
No specification data available

Please Note:

All sizes and dimensions are nominal or based on approximate builder measurements. Green Galaxy Homes reserves the right to make changes due to any changes in material, color, specifications, and features anytime without notice or obligations.